• New Home Design

    This is where Charles Higgins Residential Design all started -- with my design business. The unique opportunity to sit with a couple and help them make their dreams come true ...

  • Home Renovations & Additions

    Whether you love where you are and want to renovate or circumstances require an addition to your current house, Charles Higgins Residential Design has the experience to help ...

  • About Charles Higgins

    I remembered my last real job, the one with regular hours, steady paychecks and week-ends at home. That job ended when I had enough moonlighting work to open my own office ...

  • Condo Design & Renovation

    Whether you are looking to renovate and existing unit, to bring life to an old unit, or just a quick design, Charles Higgins Residential Design can bring your ideas to life ...

  • Equestrian Facilities

    Having lived in and worked in Wellington for the last 21 years, I have built a unique perspective on Equestrian Facilities in one of the most sought after addresses in the horse community.

Services

New Home Design

This is where it all started with my design business. The unique opportunity to sit with client and help them make thier dreams come true.

Portfolio

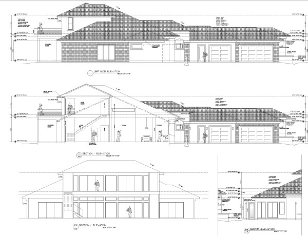
Escobar Residence - New Home Design

This residence was unique that being seasonal residents in the equestrian community of Wellington, the client wanted entertain and take advantage of the adjacent polo field in their back yard. Which gave this home it's unique character.

 

Turner Residence - New Home Design

This home accompanies a beautiful equestrian facility with barns, paddocks and a owners retreat. The need to entertain as well as grow a family provided a challenging design.

 

Bella Rosa Model Design

Having designed many homes in South Florida. This particular design is a desirable and popular design for starter home.

 

Lowen Residence - New Home Design

This home was a true custom home. Working closely with the clients and incorporating a number of their wishes and desires. We were able to create a home that will be enjoyed for many years.